Geräumiges Wohnhaus in zentraler Lage von Warin zu verkaufen
19417 Warin, Einfamilienhaus zum Kauf
Objektdaten
-
Objekt-ID5724
-
ObjekttypenEinfamilienhaus, Haus
-
AdresseMühlenbruchstraße 33
19417 Warin -
Etagen im Haus2
-
Wohnfläche ca.200 m²
-
Kellerfläche ca.12 m²
-
Grundstück ca.244 m²
-
Zimmer7
-
Schlafzimmer6
-
Badezimmer3
-
Separate WC3
-
KücheEinbauküche
-
HeizungsartZentralheizung
-
Wesentlicher EnergieträgerGas
-
Baujahr1896
-
Zustandrenovierungsbedürftig
-
AusstattungStandard
-
BauweiseMassiv
-
Käuferprovision3,57 % inkl. Mwst.
-
Kaufpreis199.750 EUR
Ausstattung / Merkmale
- ✓ Badewanne
- ✓ Balkon/Terrasse Nord
- ✓ Dusche
- ✓ Einbauküche
- ✓ Gäste-WC
- ✓ Gewerblich nutzbar
- ✓ Kamin
- ✓ Massivbauweise
- ✓ Räume veränderbar
- ✓ Satteldach
- ✓ Separates WC
- ✓ Teilunterkellert
Energieausweis
-
EnergieausweistypBedarfsausweis
-
Gültig bis10.06.2035
-
GebäudeartWohngebäude
-
Baujahr lt. Energieausweis2020
-
Wesentlicher EnergieträgerGas
-
Endenergiebedarf261,00 kWh/(m²·a)
-
EnergieeffizienzklasseH
Objektbeschreibung
Beschreibung
Sehr geehrte Damen und Herren,
hiermit bieten wir Ihnen ein sehr geräumiges Wohnhaus in zentraler Lage der Gemeinde Warin zum Erwerb an.
Ein ideales Zuhause für große Familien oder auch als Zweifamilienhaus. Die Grundrisse lassen sich diesbezüglich gut anpassen.
Wir freuen uns auf Ihre Anfrage.
Hinweis:
Das Exposé für dieses Objekt schickt Ihnen unsere interaktive Assistentin EMMA automatisch zu, wenn Sie uns über eine Immobilienbörse oder unsere Website kontaktieren.
Dort können Sie die Anfrage stellen und erhalten knapp 5 min später eine Rückantwort von uns.
Bitte öffnen Sie diese Nachricht und laden das Exposé herunter.
Damit das klappt, müssen die vom Gesetzgeber vorgegebenen Bestätigungen zur Widerrufsbelehrung, zum Datenschutz u.s.w. von Ihnen bestätigt werden.
Für Rückfragen zum Objekt bzw. um Terminvereinbarungen zu treffen, erreichen Sie uns zu den gewöhnlichen Geschäftszeiten telefonisch und darüber hinaus per E-Mail.
Vielen Dank.
Liebe Kunden,
in der Zeit vom 13. – 20. April 2026 haben wir Betriebsferien.
Ab Dienstag, d. 21. April 2026 sind wir wieder für Sie da.
Anfragen zu Objekten werden durch unsere interaktive Assistentin EMMA automatisch beantwortet und Exposés verschickt.
Herzlichen Dank.
Ihr Team von Christiane Bartz Immobilien
Ausstattung
Das massive, zweigeschossige und teilunterkellerte Wohnhaus stammt nachrichtlich aus dem Jahr 1896. Gegen Mitte des 20. Jahrhunderts erfolgte der Anbau einer Veranda.
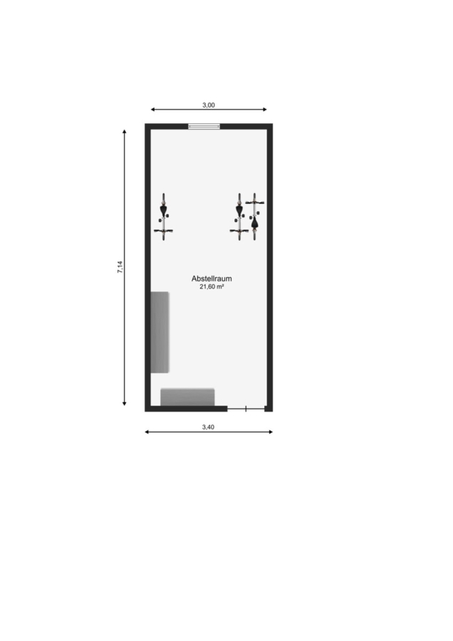
Auf einer Gesamtwohnfläche von ca. 200 m² befinden sich im Erdgeschoss ein geräumiges Wohnzimmer, 2 weitere Schlafzimmer, 2 Duschbäder, ein separates WC sowie eine Küche mit Einbaumöbeln. Ein Abstellraum ist ebenfalls vorhanden.
Über eine geradläufige Massivholztreppe im geräumigen Hausflur ist das Obergeschoss erreichbar. Dort befinden sich 4 weitere Zimmer mit Flur, einer Küche, ein Wannenbad, sowie zwei Abstellräume. Einer beherbergt die neue Gaszentralanlage und den neuen Wasserspeicher zur Warmwasseraufbereitung. Im zweiten Abstellraum befindet sich der Stromsicherungskasten für den ersten Stock.
Die Stockwerke sind von der Elektrik her unabhängig voneinander geführt mit eigenem Zähler.
Ein ca. 14 m² großer Teilkeller ist vom Erdgeschoss aus erreichbar.
Das Haus wurde zuletzt ab 2021 weiter modernisiert. Auch die Raumaufteilung wurde auf die Bedürfnisse der Eigentümer angepasst.
Diese Arbeiten sind jedoch noch nicht vollständig abgeschlossen.
PKW-Stellflächen sind im öffentlichen Verkehrsraum direkt an das Grundstück grenzend vorhanden.
Auf der Rückseite des Hauses ist ein kleiner Gartenbereich vorhanden.
Auf den hier beigefügten Fotos erkennen Sie den aktuellen Ausstattungsgrad, den Sie im Rahmen einer individuellen Objektbesichtigung oder mithilfe des virtuellen Rundgangs (mit kleiner Registrierung) gern vertiefen können.
Zum Rundgang gelangen Sie über folgende Adresse:
Sehr gern präsentieren wir Ihnen das Objekt im Rahmen einer individuellen Besichtigung.
Wir freuen uns auf Ihre Anfrage.
Sonstiges
Das Grundstück ist wie folgt erschlossen:
- Wasser (Hausanschluss neu) und Abwasser
- Strom und Telefon
- Erdgas (Hausanschluss neu)
Zuletzt 2021/2022 wurde modernisiert wie folgt:
- Einbau einer Zentralheizung im EG 2021
- Stromanschluss strassenseitig neu – Absicherung mit hoher zeitgemäßer Amperezahl,
- sämtliche Leitungen Wasser, Abwasser, Elektrik neu
- Aufbau Fussboden EG komplett neu, sowie nach DIN 2021 neue Bodenplatte mit Feuchtigkeitssperre, Dämmung und Estrich, statt bisherigem Streifenfundament und Sandschüttung
- auf Estrich Unterkonstruktion Dielen mit zwischenliegender Perliteschüttung zur Schall- und Wärmedämmung, dann Verbau der aufgearbeiteten historischen Dielen
- Wände im EG mit Lehmputz für ein optimales Raumklima, Lichtleiste für eine Ambientebeleuchtung in Wohn- und Schlafzimmer
- Aufarbeitung des schönen alten Fliesenbodens in Flur und Küche
- Erneuerung sämtlicher Gasheizkörper durch flache moderne Varianten
- Stromzählerkasten im EG im Flur neu.
Nähere Auskünfte erteilen wir Ihnen gern telefonisch sowie auf Anfrage.
Besichtigungen sind nach Terminvereinbarung möglich. Bitte rufen Sie uns gern an.
Wir vermarkten gern auch Ihre Immobilie im Landkreis Nordwestmecklenburg – schnellstmöglich, fachgerecht, freundlich und kompetent.
Kontaktdaten
-
NameFrau Christiane Bartz
-
FirmaChristiane Bartz Immobilien
-
AnschriftSchatterau 45
23966 Wismar -
E-Mail
-
Telefon
-
Mobil
-
Fax004938412579101
Lage
In einer ruhigen Nebenstrasse im Zentrum von Warin ist dieses geräumige Ein- bis Zweifamilienhaus mit Klinkerfassade zu finden.
Das Wariner Strandbad erreichen Sie fussläufig innerhalb von 10 Minuten.
Der Ort Warin ist geprägt von umliegenden Wald- und Wasserflächen, die einen Naherholungscharakter vermitteln.
Vor Ort finden Sie alle für den täglichen Bedarf notwendigen Einrichtungen einschließlich Kindertagesstätte, Grundschule, Musikschule, Jugendeinrichtungen, Gaststätten u.a.m.
Die Verkehrsverbindung nach Warin ist gut ausgebaut. Die Entfernung in die Hansestadt Wismar beträgt ca. 20 km.
Nach Stermberg und zur Autobahn gelangen Sie mit dem PKW in ca. 15 min.
Kindergarten 1 km | Grundschule 1 km | Realschule 1 km | Gymnasium 12 km | Autobahn 16 km | Zentrum 500 m | Bus 500 m | Einkaufsmöglichkeiten 500 m
Die Position der Immobilie auf Google Maps ansehen (Link auf externe Website)






























